Stai cercando la casa dei tuoi sogni? Ecco l’opportunità perfetta per te!
Ti proponiamo in vendita una splendida villa indipendente, attualmente in corso di costruzione, che offre il massimo del comfort e dello spazio, ideale per una famiglia moderna.
Questa casa si sviluppa su due livelli, progettati per garantire la massima funzionalità ed abitabilità.
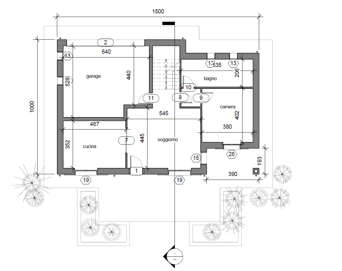
Piano Terra
Entrando, troverai una comoda zona living, perfetta per rilassarti e trascorrere del tempo di qualità con i tuoi cari. La cucina, separata, è il luogo ideale per preparare deliziose cene. Sempre al piano terra, è presente un bagno, una camera/studio ed un ampio garage con annessa zona cantina.
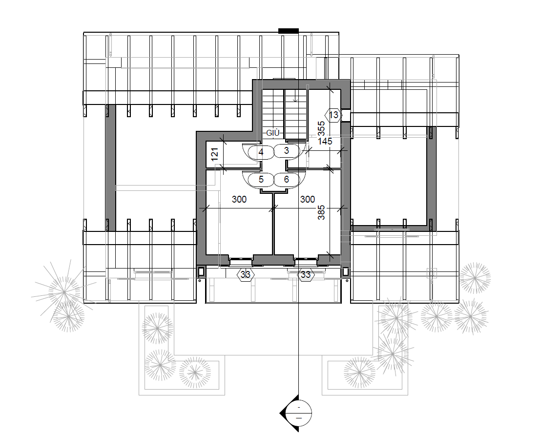
Primo Piano:
Salendo al primo piano, scoprirai 2 luminose camere da letto, ognuna pensata per garantire il massimo del comfort e della privacy, un secondo bagno ed una comodissima cabina armadio.
Il giardino privato di circa 400 mq circonda la casa, offrendo uno spazio verde dove poter organizzare barbecue, giochi all’aperto per i bambini, o semplicemente goderti momenti di relax immerso nella natura.
L’immobile si trova in una zona tranquilla di Trinità, vicina a tutti i principali servizi come scuole, negozi e trasporti pubblici, rendendola la scelta ideale per chi cerca comodità e serenità.
Ad oggi, la proprietà risulta da ultimare, pertanto può essere personalizzata a tuo piacimento. Sono previsti i serramenti in PVC a vetro doppio, riscaldamento a pavimento con possibilità di scelta tra caldaia a condensazione o pompa di calore.






























