A volte non è solo una casa, ma un insieme di spazi che possono davvero migliorare il modo di vivere ogni giorno.
Questa casa indipendente, situata in Via Romita a Ceva, è una di quelle.
Una soluzione che unisce ambienti generosi, sfoghi esterni e una distribuzione che lascia spazio sia alla quotidianità che alla personalizzazione.
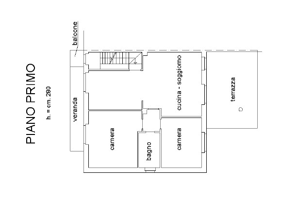
Salendo al piano primo, si entra nel cuore della casa. La zona giorno è ampia e luminosa, con soggiorno e cucina collegati tra loro, un ambiente che invita naturalmente alla convivialità.
Ma il vero protagonista è l’accesso diretto al grande terrazzo: uno spazio raro, da vivere davvero.
Qui puoi immaginare pranzi all’aperto, serate estive, momenti di relax… uno di quegli ambienti che cambiano il modo di vivere la casa.
La zona notte è composta da due camere ed un bagno, con spazi ben proporzionati e facilmente adattabili alle esigenze di una famiglia o di una coppia.
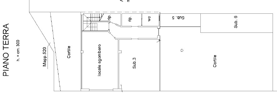
Scendendo al piano terreno, oltre ai locali accessori e di servizio, troviamo un ampio garage di circa 35 mq, comodo non solo per l’auto ma anche come spazio multifunzionale.
Da qui si accede anche al giardino privato, uno spazio raccolto e riservato. E’ il luogo perfetto per chi desidera un’area verde da vivere ogni giorno: che sia per rilassarsi, per far giocare i bambini.
Completa la proprietà il piano sottotetto, attualmente non abitabile ma utile come spazio accessorio, deposito o da sfruttare in base alle proprie necessità.
Dal punto di vista tecnico, l’abitazione è già vivibile nella sua configurazione attuale, ma offre margine per interventi di aggiornamento e personalizzazione, permettendo di valorizzare ulteriormente gli spazi e adattarli al proprio stile.
È la casa giusta per chi cerca qualcosa da vivere da subito, ma anche da far crescere nel tempo, rendendola davvero propria.
Contattaci per maggiori informazioni o per fissare una visita.















































