In Frazione Gerbo, a pochi minuti da Fossano, è disponibile un rustico da ristrutturare libero su tre lati, ideale per chi desidera realizzare un progetto abitativo o recuperare una tipica struttura rurale piemontese in un contesto tranquillo e immerso nel verde.
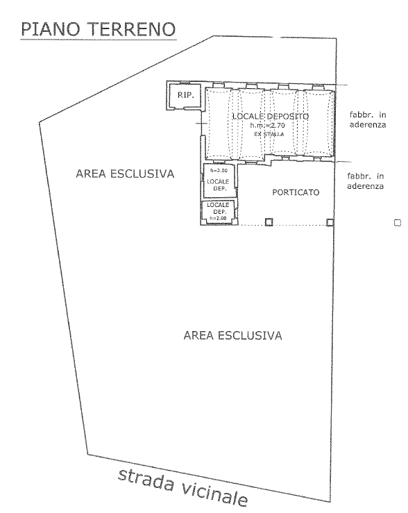
L’immobile è composto da una spaziosa stalla, un fienile di notevoli dimensioni, un ampio porticato sul fronte e diversi locali di deposito e ripostiglio. Sul retro è presente un ulteriore portico, che amplia ulteriormente le possibilità di utilizzo e recupero della proprietà. Le volumetrie esistenti consentono di ripensare gli spazi in modo funzionale e personalizzato, adattandoli alle proprie esigenze.
L’area esterna, pari a circa 1.600 mq, circonda il fabbricato creando un piacevole spazio verde ideale per giardini, zone relax o attività agricole. L’accesso avviene dal fronte principale tramite una strada vicinale poco trafficata, che garantisce privacy e tranquillità.
Una soluzione interessante per chi cerca un immobile da trasformare, comodo ai servizi di Fossano ma immerso nella quiete della campagna.
Tecnica Immobiliare lavora in collaborazione con lo Studio Tecnico Turco & Viglino, mettendo a disposizione dei clienti un servizio completo. Se desideri supporto nella progettazione o nella valorizzazione di questa proprietà, possiamo affiancarti nella definizione di un intervento su misura, pensato per rispondere concretamente alle tue esigenze.


































