Proponiamo in vendita una casa terratetto semindipendente, libera su due lati e dotata di ingressi completamente indipendenti, ideale per chi cerca privacy, comodità e pertinenze esterne funzionali. L’immobile è parzialmente ristrutturato e dispone di un cortile privato con cancello automatico nuovo, oltre a una strada privata che conduce alla parte retrostante della proprietà, dove si trova un terreno/orto di circa 800 mq.
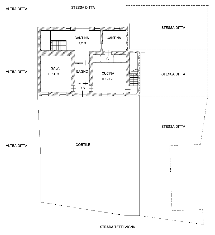
Al piano terreno l’ingresso si apre su un disimpegno che collega la cucina abitabile, la sala, un bagno, due locali cantina e un piccolo locale tecnico. Il riscaldamento dell’intera abitazione è garantito da un termocamino a legna, che alimenta l’impianto e assicura autonomia ed efficienza.
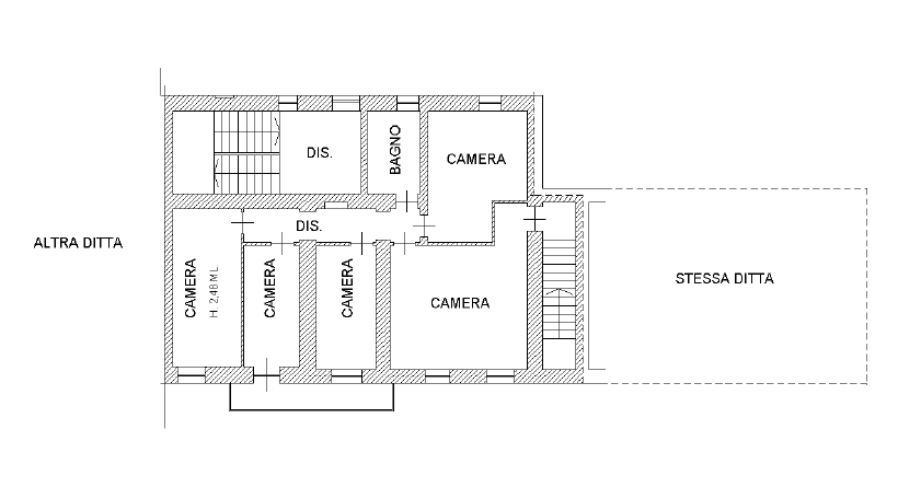
La zona notte si sviluppa al piano superiore, dove sono presenti due camere da letto, un disimpegno, due ulteriori bagni e un balcone affacciato sul cortile privato, che offre una buona luminosità e uno sfogo esterno utile.
La proprietà è arricchita da un cortile/giardino di circa 200 mq posto sul fronte dell’abitazione, perfetto per la vita all’aperto. A disposizione anche un gazebo in legno nuovo, ideale per pranzi estivi o momenti di relax.
Una soluzione interessante per chi desidera un’abitazione con spazi interni ed esterni ben distribuiti, indipendenza e la possibilità di personalizzare secondo le proprie esigenze, in un contesto tranquillo e facilmente raggiungibile.





























