In posizione tranquilla e soleggiata, a pochi minuti dal centro di Beinette, proponiamo in vendita una casa indipendente disposta su quattro livelli, caratterizzata da spazi ampi, ottima esposizione e un contesto riservato.
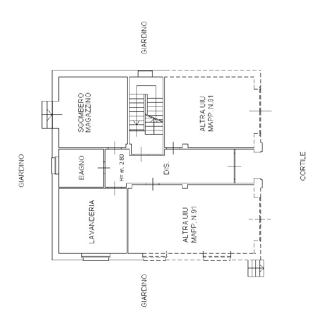
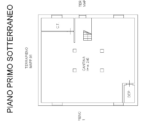
Al piano primo seminterrato si trovano un’ampia cantina, un locale deposito e il locale caldaia. Il piano terreno accoglie un ingresso con disimpegno, un bagno, un locale di sgombero, una lavanderia e due autorimesse di comode dimensioni.
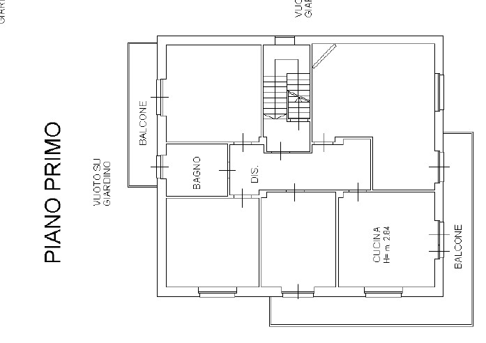
L’abitazione principale si sviluppa al piano primo ed è composta da ingresso su disimpegno, luminoso soggiorno, cucina, tre camere da letto e bagno. Due ampi balconi — uno sul fronte e uno sul retro — garantiscono una piacevole luminosità e affacci aperti su entrambi i lati dell’immobile.
Il piano secondo ospita il sottotetto, ampio e versatile, ideale come deposito o per un futuro recupero.
All’esterno la proprietà comprende un ampio cortile pertinenziale, un giardino privato e una recinzione completa, che assicura privacy e tranquillità. L’accesso avviene tramite cancello elettrico, dettaglio che aggiunge comodità e sicurezza.
La casa gode di una posizione soleggiata e comoda ai servizi, rappresentando un’ottima opportunità per chi desidera una soluzione indipendente con spazi esterni generosi e grande potenziale.














































