In vendita casa semindipendente con ampio terreno pertinenziale, disposta su tre livelli e caratterizzata da spazi ampi e ben distribuiti. L’immobile, da ristrutturare, offre un’ottima opportunità per chi desidera personalizzare gli ambienti secondo le proprie esigenze.
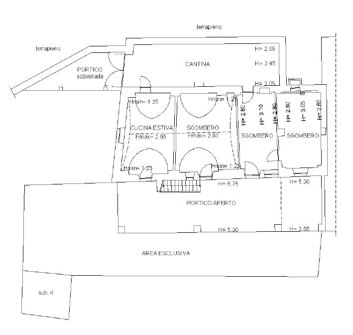
Al piano terreno si trova un grande porticato, ideale per molteplici utilizzi, oltre a una taverna accogliente, tre locali di sgombero e una cantina. Una scala esterna conduce al primo piano, dove una loggia introduce alla zona abitativa. Qui, un disimpegno collega la sala, dotata di accesso diretto al terrazzo e all’area esterna, una cucina, una camera da letto e un bagno. Dal disimpegno parte inoltre una scala interna che porta al secondo piano, composto da tre camere da letto, due delle quali con balcone, e un secondo bagno.
Completa la proprietà un ampio terreno pertinenziale esposto a sud, che garantisce ottima luminosità per tutto l’arco della giornata, oltre a un piccolo magazzino su due piani, ideale come deposito o per altri utilizzi. Grazie alla possibilità di ristrutturazione, questa soluzione rappresenta un’ottima occasione per creare una casa su misura, valorizzando al meglio gli spazi e le potenzialità dell’immobile.
















































